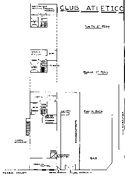
Los siguientes son gráficos y fotos del Campo de Concentración "Club Atlético" aparecidas en Nunca Más

diagrama
Nunca Más, p. 124



Nunca Más, p. 127




Nunca Más: Club Atlético
Nunca Más: Club Atlético - Ampliación